Monday, April 20, 2026
71.0°F

Bond passage would mean entirely new school

Royal Register Editor | Hagadone News Network | UPDATED 13 years, 5 months AGO
by Royal Register EditorTed Escobar
| October 23, 2012 6:05 AM

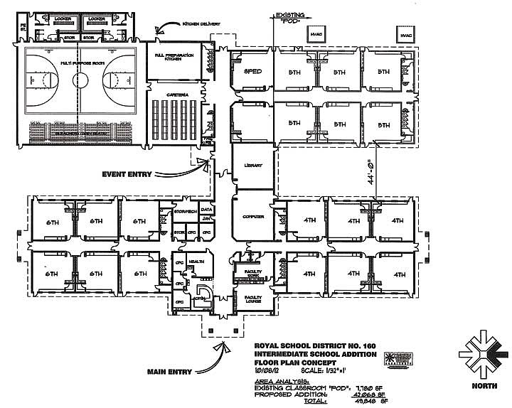
photo

It is accompanied by a proposed floor plan for the new school.

ROYAL CITY - The Royal School District will have a completely new intermediate school in the future if a proposed $8.75 million construction bond election passes early next year.

The election still must be officially approved by the school board to be placed on the Feb. 12 ballot. Approval is expected in December.

Although the new school is planned, its current design is not set in stone. Superintendent Rose Search encourages comment and invites all district patrons, including those opposed, to facilities committee meetings.

The next Facilities Planning Committee meeting is scheduled for Tuesday, Nov. 6, at 6:30 pm in the High School Library.

If the voters approve the sale of bonds, the district will add 14 classrooms to the fifth grade POD building, which is located beyond the athletic fields parking lot. It will be converted into a school for grades 4-5-6.

That would take the fourth graders from Red Rock Elementary School and ease crowding there. Crowding would be reduced at Royal Middle School by removing the sixth grade.

The new school would have a full cooking kitchen and a full gymnasium. The latter would give the district more after-school practice venues for the numerous sports teams at the high school and middle school.

"First and foremost, it would be for the PE program," Search said "It would also serve as cafeteria overflow secondly."

According to district business manager David Andra, the new kitchen likely would not require new staff. Current personnel would simply be re-assigned. The district already has the appropriate number of kitchen workers for its enrollment.

In addition to the new school, funds generated by passage of this election will pay for four new classrooms and additional restrooms for boys and girls at the high school.

According to Andra, total cost of the project would be $14.25 million. The bonds would generate $8.75 million. The state would contribute $4.4 million, and the district has saved $1.1 million.

One of the adjustments that would come from the new K-8 configuration is the lunch schedule for younger children. It starts at 10:45 a.m. now at Red Rock Elementary and ends at 12:25. With full service at the new school, RRE would change to an 11:15-12:15 lunch hour.

"Our kindergarten kids eat at 10:45 and don't eat for another four and a half hours," Search said. "And we don't know if they eat right away when they get home."

Whatever the advantages of a new school may be, it may be a tough sell to the voters. The American economy is still struggling, and voters rejected the last three tries.

A bond election needs 60 percent yes votes to pass. Two votes in 2009 garnered 48.6 and 55.64 percent. One in 2011 attracted 54.55 percent. Validation was not a problem.

This proposal could be more attractive than the last three, financially speaking. Less bond money will allow more construction. The last three elections called for more than $9 million in bond sales, and two of them added only 14 classrooms.

ARTICLES BY ROYAL REGISTER EDITOR

July 26, 2011 7:20 a.m.

Today in History for July 26th

August 19, 2011 6:12 a.m.

Today in History for August 19th

July 1, 2011 6:10 a.m.

Today in History for July 1st