Monday, April 27, 2026
39.0°F

Soil testing scheduled for site of new Somers Middle School

Hilary Matheson Daily Inter Lake | Hagadone News Network | UPDATED 7 years, 7 months AGO
by Hilary Matheson Daily Inter Lake
| September 15, 2018 4:00 AM

photo

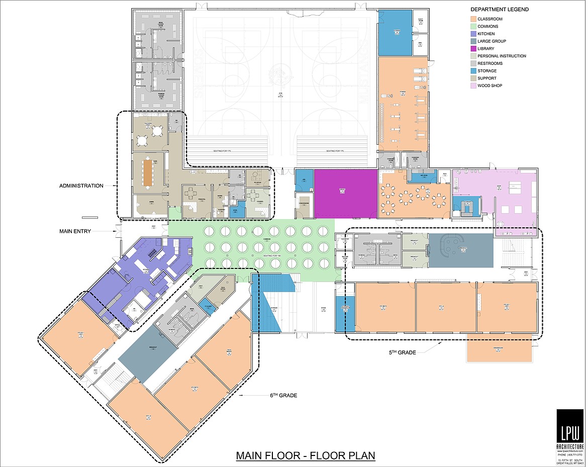
The main level of the Somers Middle School will be approximately 39,740 square feet.

photo

The upper level is about 22,830 square feet and overlooks the gym and commons/dining areas.

Geotechnical engineers will return to Somers Middle School next week to take additional soil samples of the site before new design plans are finalized. The goal is to start construction in spring 2019.

“We’re just drilling to confirm what we think is there,” said Joshua Smith of Slopeside Engineering.

Construction was set to begin this spring on a $15.8 million addition and renovation to the existing building, but was stopped before it began when soil reports revealed a worst-case scenario: wet, loose, sandy soil susceptible to soil liquefaction — when soil behaves like a liquid, typically during an earthquake. Soil liquefaction causes settling, and, in the case of the original construction plans, the potential for differential — uneven settling that usually leads to structural damage.

Architects returned to the drawing board. L’Heureux Page Werner Architect Max Grebe said that, according to modern building codes, the school needed to be designed and constructed to withstand a 6.0 magnitude earthquake with an epicenter a little more than six miles away.

Smith anticipated finding a soil composition similar to the one which halted construction. However, he said that such risky soil composition might not be as close to the surface, and that the surface of the relocated school site is more uniform.

“We don’t have as much differential settlement to deal with, however, we still anticipate hitting liquefiable soil. I think mitigation measures will be necessary,” Smith said. He predicted these measures wouldn’t be cost prohibitive, like the original plans.

These initial plans included building a new addition to the existing school while expanding a wing constructed in 1993, then demolishing two older wings constructed in the 1950s and 1960s. The problematic soils were located north of the 1993 wing, where a hillside leads to a lower parking lot. Issues were raised about a two-story section that was to be built into the hillside.

Initially, architects wanted to demolish the existing school and construct an entirely new building away from the problematic area, but that wouldn’t fulfill the ballot language for the bond issue, which requires some level of renovation work and construction of an addition, specifically, “... designing, constructing, furnishing and equipping additions and renovations to Somers Middle School, to include classrooms, a gymnasium, a kitchen and lunchroom, a shop, a science lab, upgrades to the main school office area, building-wide security enhancements, related amenities and improvements at the existing Somers Middle School campus.”

In August, Grebe presented a new concept to a design oversight committee that still incorporated building a new school while fulfilling the ballot language by remodeling the existing gym as an auxiliary gym for the community. The committee expressed concerns over the amount of money required to renovate the carpeted gym, the fact that it would be the first part of the building seen by visitors, and that demolishing the gym had been a selling point of the bond issue.

It was decided to move forward with constructing a new building east of the existing school. The existing school would be demolished except for about 11,300 square feet of the 1993 wing. The retained wing will not house students as it is located on problematic soil. It has been proposed to remodel the space into a storage facility, connecting it to the new building with a breezeway. The extent of remodeling is dependent on how much money remains after the new building is completed, according to Somers-Lakeside School District Superintendent Joe Price. Price’s hope is that there can be a broader community use of the building beyond a storage facility.

Elements of the original plan are incorporated in the new design, but in a tighter, two-story configuration with shorter hallways. The main level will be approximately 39,740 square feet. The second floor will be 22,830 square feet with an area that overlooks the gym and commons/dining areas. Efficiencies worked into the new construction will help the project stay within budget constraints, according to Grebe.

Although the plan has evolved from the one presented to voters prior to the October 2017 election, Price said he is confident, after consulting with a few attorneys, including Dorsey & Whitney, who crafted the bond issue question, that it meets all of the ballot language for the bond issue.

“It’s true that it’s a whole new building, but it’s an addition to our campus,” Price said.

Once the geotechnical report is reviewed, the design package will be finalized, with bids tentatively going out in the winter and Swank Enterprises starting construction in spring 2019.

Reporter Hilary Matheson may be reached at 758-4431 or [email protected].

ARTICLES BY HILARY MATHESON DAILY INTER LAKE

April 24, 2018 2 a.m.

No headline

The University of Montana is still in the early stages of transformation under the leadership of university president Seth Bodnar.

June 10, 2018 4:50 p.m.

No headline

LIVING ON THE EDGE

Nathan Brown of Kalispell is a survivor.

February 4, 2018 4:25 p.m.

No headline

A lifelong learner

After 11 years at Edgerton Elementary, Merisa Murray will open new doors in her career as principal of Rankin Elementary when it opens in 2018.