Friday, May 15, 2026
48.0°F

Zoning commission denies proposed marina expansion

CHLOE COCHRAN | Hagadone News Network | UPDATED 3 months AGO
by CHLOE COCHRAN
| February 14, 2026 1:00 AM

SANDPOINT — After a six-and-a-half-hour meeting, the Bonner County zoning commission unanimously denied a conditional use permit to expand a commercial marina off Lakeshore Drive in Sagle.  

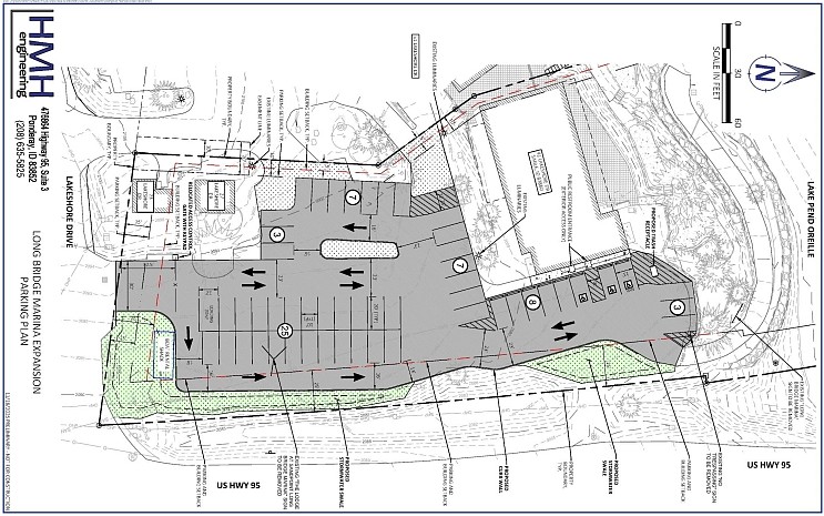
Zoning commissioners denied updates that would expand the existing 47-slip marina by 45 additional slips — for a total of 92 — and include upland usage, incorporating a 53-stall parking lot. The denial was based on findings that the expansion would create a hazard and would be dangerous to persons on or adjacent to the property.  

Public comments were largely opposed to the expansion, citing concerns of additional traffic on U.S. Highway 95 and the dangers that the Lakeshore Drive and U.S. Highway 95 intersection already poses to community members, even without increased traffic. The intersection, noted as one of the more dangerous ones in the county, has been a topic of concern with limited visibility and potentially hazardous left turns.  

“My husband and I walk two or three times a day, back and forth over to Lakeshore. And the intersection, as we all know, is very, very dangerous,” one resident said. “It’s dangerous because there are five lanes that can have stuff happening right there, and adding another stream of cars and people walking, that’s a big concern.” 

In an agency review email, Bonner County Road and Bridge recommended that a traffic impact study be required for the expansion to identify improvements needed for the current and future phases of the marina. However, project representative Laura Cannon noted that the proposed expansion would generate 22 peak-hour trips, which is below the requirement for a full traffic impact study. 

As it stands, the Idaho Department of Lands has approved the marina to expand up to 268 boat slips — project applicants are only requesting an additional 45 slips, for a total of 92. The county does not have jurisdiction over boat slip approval, as that authority falls under state oversight.  

Road and Bridge further recommended installing a right-turn-only sign for individuals leaving the marina to limit traffic from exiting onto the highway and turning the corner at a high speed. Officials noted that discussions are already being had with ITD to force right turns onto the highway.  

Other concerns were also raised about eroding shorelines from the boater traffic and wakes, where community members already noted destroyed shorelines from the existing traffic.  

In making their decision to deny the proposal, zoning commissioners discussed already existing hazards of the Lakeshore and U.S. Highway 95 intersection and noted that the proposed marina expansion would only worsen the traffic around the area.  

ARTICLES BY CHLOE COCHRAN

Bowen recognized as ITD engineer of the year
May 15, 2026 1 a.m.

Bowen recognized as ITD engineer of the year

Last week, Bowen planned to arrive early to her meeting in Coeur d’Alene to celebrate an unknown coworker who was awarded an Idaho Transportation Department award.

Split vote denies 1,153-acre zone change request
May 14, 2026 1 a.m.

Split vote denies 1,153-acre zone change request

Bonner County commissioners denied a land use file for a 1,153-acre zone change for a property in Hope after commissioners shared differing opinions during a May 7 land use hearing on how to interpret county code.

County approves appointments, camp contracts
May 13, 2026 1 a.m.

County approves appointments, camp contracts

Amid a handful of agenda items brought forth to Bonner County commissioners, the board approved the appointment of six people to perform duties within the county as it relates to assisting community members in need and maintaining campgrounds.