Bonner County Historical Society seeking public input on expansion
JACK FREEMAN | Hagadone News Network | UPDATED 6 months, 2 weeks AGO
SANDPOINT — The Bonner County Historical Society is seeking public feedback on its plan to expand the Bonner County History Museum by over 2,000 square feet.
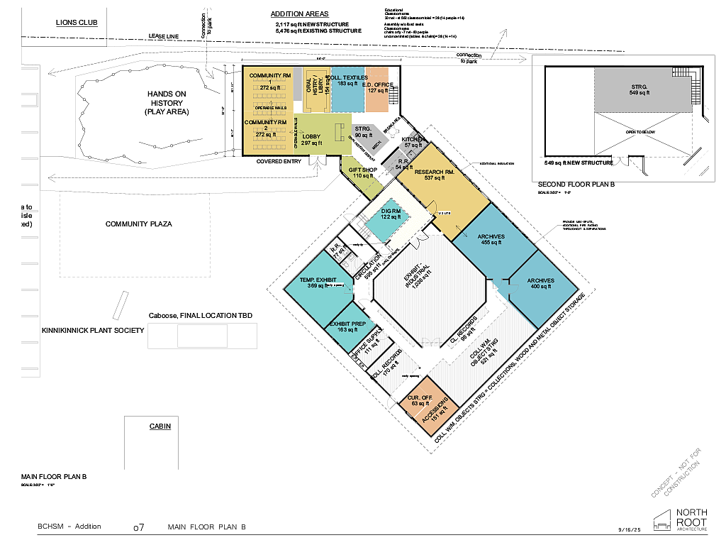
Thanks to a $1 million anonymous donation, BCHS officials said they are aiming to completely renovate the current space that would see a new building and kids play area to take the place where the caboose currently sits. The new building would feature a revamped lobby and two community rooms, according to the renderings of the proposal.
“That would become the entrance and the community spaces,” BCHS’ executive director Hannah Combs said of the addition. “Especially with the roofing structure to add directly onto this building would end up being a lot more expensive than being able to basically build a second small building and then connect the two of them on the first floor.”
The current exhibit areas would remain largely unchanged in the current proposal, but Combs said that some of BCHS’ most sensitive items could be moved into the new building. Tonya Sherman, president of the BCHS, said they prioritized creating multi-use spaces so more connections could be formed in the space.
"I really want to have the kids next to the oral histories because if the kids can hear the earlier generations sharing their story, how cool is that?” Sherman said. “Creating those natural opportunities that wouldn’t otherwise happen.”
The proposed additions would happen in phases, with the addition on the lawn area being the focus of the first phase. The second would see the current building be remodeled to expand storage for the museum’s current and future collections by 50%.
Sherman said during the planning process the organization also wanted to expand the area for staff and volunteers. She cited the current meeting and break room also serves as partial storage for parts of the museum's collection.
"This to me is not the best option, but it’s what we have,” Sherman said. “With our new potential building, could we have two classrooms that open up and have a multi-use space so we can have those presentations?”
BCHS said on their website that the plans will be reviewed multiple times by the city of Sandpoint due to the building sitting on city owned land in Lakeview Park. Currently, BCHS and Sandpoint are negotiating a lease renewal.
Those negations have been at a standstill since September as the two parties debate terms, which has left the museum operating in limbo without an active lease. Combs said BCHS is committed to finding a solution to staying at Lakeview Park, but they have explored alternate locations for the museum.
According to the BCHS website, the cost to move the museum would be more than double the planned additions to the Lakeview Park Facility.
“We’re really committed to remaining a cultural anchor in the Sandpoint Parks System,” Combs said. “We’re really happy with where we are.”
BCHS will be hosting an open house event at the museum on Nov. 10 from 4 to 7 p.m. to discuss the addition. Those who cannot make the event are invited to fill out a survey at bonnercountyhistory.org/expansion-plans.
"We want it to be fun, creative and have input from the community about how it’s really used,” Sherman said.
ARTICLES BY JACK FREEMAN
Mayor proposing ban of kratom sales in Sandpoint
Mayor Jeremy Grimm is proposing a ban on selling kratom in city limits, which will come before the Sandpoint City Council for a public hearing and adoption on Wednesday evening.
Safety measures vandalization could force closure of pedestrian Long Bridge
Safety measures on the Long Bridge are repeatedly being vandalized, Idaho Transportation Department officials said. If it continues, ITD officials said they could be forced to shut down pedestrian access until repairs are complete.
Larson running for District 1B House seat
Sagle resident Kathryn Larson is running for the District 1B House of Representatives seat as an independent in November.
